PALLAS

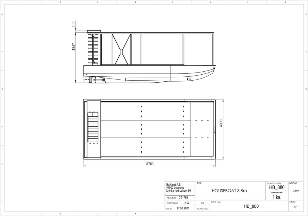
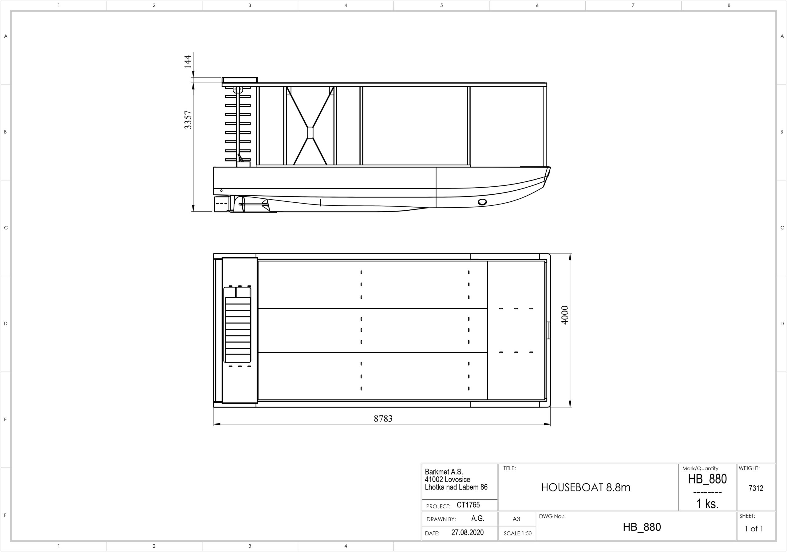
Jmenuji se Pallas. Jsem nejmenší dům na vodě z nabídky. Měřím 8,8 m na délku a disponuji obytnou plochu až 38 m2 + terasa. Mám výkonný motor vhodný pro cestování a kotevní prvky, když chci zůstat na místě. Naši klienti mě rádi využívají pro rekreaci nebo pro příjemné bydlení páru i jednotlivce.

PALLAS

Jmenuji se Pallas. Jsem nejmenší dům na vodě z nabídky. Měřím 8,8 m na délku a disponuji obytnou plochu až 38 m2+ terasa. Mám výkonný motor vhodný pro cestování a kotevní prvky, když chci zůstat na místě. Naši klienti mě rádi využívají pro rekreaci nebo pro příjemné bydlení páru i jednotlivce.

ZÁKLADNÍ PARAMETRY

Rozměry

  • až 38,78 m2

  • 8,80m délka x 4,40m šíře

  • 0,80m ponor

  • 2,70 m průjezdná výška

Základní vybavení

  • Hlavní motor (Allpa, Vetus)

  • Dokormidlovací zařízení

  • Kotva a kotevní systémy (dalby)

  • Nádrže – pitná voda, palivová a fekální nádrž, balastní nádrže (vyvážení trupu)

Materiály

  • Plechy a profily – konstrukční ocel S235JR, včetně všech potřebných  certifikátů jakosti, tzn. potvrzení chemického složení materiálu (certifikace materiálu 3.1 vhodná pro rekreační plavidla)

  • Povrchová úprava – používáme systém Hempel

  • Ponor – antifouling

INTERIÉR

,,Návrh interiéru vychází z přání klienta.“

K návrhu nejlépe dojdeme, když si Vaši představu velmi jednoduše nakreslíte. Skica na papíru je základem pro práci konstruktéra, který Vaši skicu promění ve skutečnost. Jakmile si vše ujasníme a dojdeme k nejlepší variantě, můžeme stavět!

STAVEBNÍ STRUKTURA

Všechny stavební materiály plovoucího domu jsou pečlivě vybírány. Ocelové části jsou buď z nerezové oceli AISI316, nebo žárově pozinkované oceli. Hlavní konstrukce, stejně jako všechny ostatní stavební materiály, jsou lehké a odolné.

Domy na vodě jsou navrženy v souladu s místníma klimatickýma podmínkama. Při navrhování našich domů na vodě jsme se zaměřili především na povětrnostní, vodní a zimní vlivy.

Nejprve je hausbót postaven v naší výrobní hale v Lovosicích a následně dopravena do místa Vašeho kotviště.

STAVEBNÍ STRUKTURA

Všechny stavební materiály plovoucího domu jsou pečlivě vybírány. Ocelové části jsou buď z nerezové oceli AISI316, nebo žárově pozinkované oceli. Hlavní konstrukce, stejně jako všechny ostatní stavební materiály, jsou lehké a odolné.

Domy na vodě jsou navrženy v souladu s místníma klimatickýma podmínkama. Při navrhování našich domů na vodě jsme se zaměřili především na povětrnostní, vodní a zimní vlivy.

Nejprve je hausbót postaven v naší výrobní hale v Lovosicích a následně dopravena do místa Vašeho kotviště.

ŘEŠENÍ ENERGIE A ÚSPORA

,,Naše domy na vodě jsou vybaveny nejnovějšími technologiemi pro zajištění úspory energie.“

Dům je vybaven slunečními kolektory, které zajišťují teplou vodu pro domácnost, ve slunném období nabízí velmi nízkou spotřebu energie. Pro vytápění domu doporučujeme využití geotermálních energií tepelným čerpadlem.

Inteligentní vybavení systému pro úsporu energie a technologií umožňuje dosáhnout až LEED hodnocení. Komplexní automatizační a bezpečnostní systém Lonix umožňuje vyřešení nadstandartního komfortu uvnitř hausbótu. Zároveň zajišťuje drastické úspory energie, pomocí inteligentních ovládacích prvků a hladké integrace systémů.

Větrání s integrovaným energetickým využitím (Enervent), dále snižuje energetickou spotřebu při chlazení až o 80% prostřednictvím větrání využití energie. Vysoce efektivní filtrace vzduchu škodlivých částic – viry, bakterie a chemikálie – zajišťuje čistý a bezpečný vzduch v místnosti. Energeticky efektivní izolace a okna jsou standardní řešení.

,,Využité systémy a materiály pomáhají šetřit Vaše peníze i životní prostředí v dlouhodobém horizontu.“

ŘEŠENÍ ENERGIE A ÚSPORA

,,Naše domy na vodě jsou vybaveny nejnovějšími technologiemi pro zajištění úspory energie.“

Dům je vybaven slunečními kolektory, které zajišťují teplou vodu pro domácnost, ve slunném období nabízí velmi nízkou spotřebu energie. Pro vytápění domu doporučujeme využití geotermálních energií tepelným čerpadlem.

Inteligentní vybavení systému pro úsporu energie a technologií umožňuje dosáhnout až LEED hodnocení. Komplexní automatizační a bezpečnostní systém Lonix umožňuje vyřešení nadstandartního komfortu uvnitř hausbótu. Zároveň zajišťuje drastické úspory energie, pomocí inteligentních ovládacích prvků a hladké integrace systémů.

Větrání s integrovaným energetickým využitím (Enervent), dále snižuje energetickou spotřebu při chlazení až o 80% prostřednictvím větrání využití energie. Vysoce efektivní filtrace vzduchu škodlivých částic – viry, bakterie a chemikálie – zajišťuje čistý a bezpečný vzduch v místnosti. Energeticky efektivní izolace a okna jsou standardní řešení.

,,Využité systémy a materiály pomáhají šetřit Vaše peníze i životní prostředí v dlouhodobém horizontu.“

CENA

Cena se liší dle požadované konfigurace. Konečná kalkulace tedy závisí na požadavcích klienta. 

Kontaktujte nás!

ZAUJALA VÁS NABÍDKA?
DOMLUVTE SI SCHŮZKU